Balance- und Kletteranlage Tiaki
Produktinformationen "Balance- und Kletteranlage Tiaki"
Spielwerte: | |
---|---|
Alter: | |
Lieferumfang | 4x Pfostenkonstruktion: Nadelholz oder Stahl1x Puzzledach: Hochdrucklaminat (HPL)1x Wackelbrücke gerade: Nadelholz, Stahl feuerverzinkt2x Kantholz: Nadelholz Beschläge: Edelstahl (V2A) |
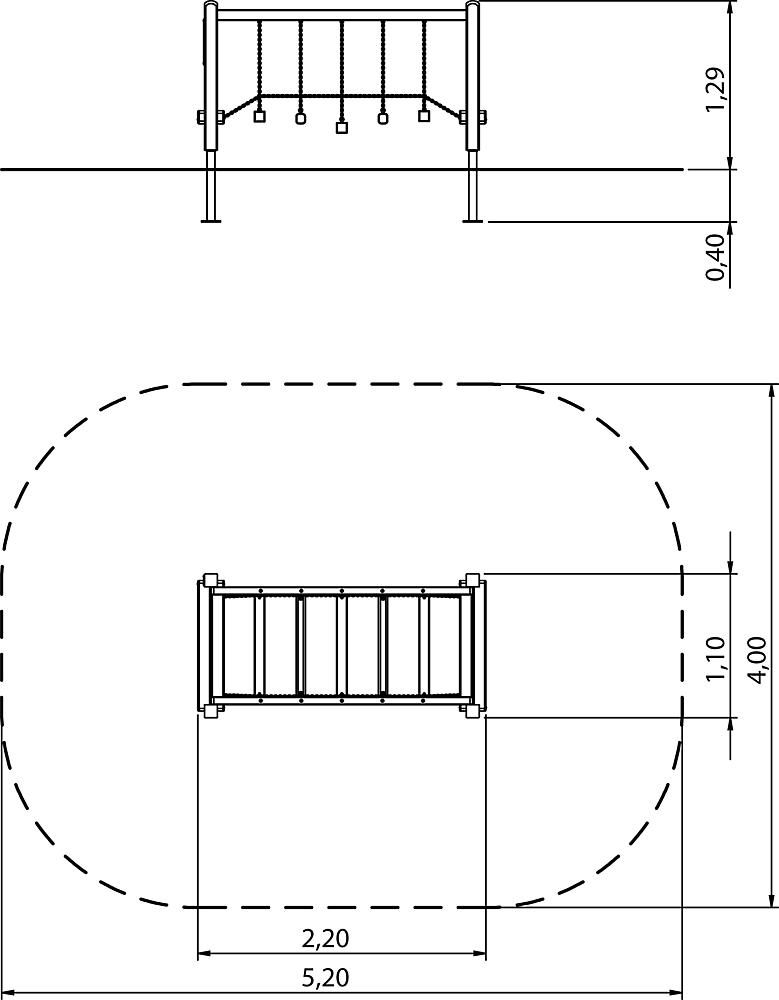
freie Fallhöhe | 45 cm |
größtes Teil | 10x114x10 cm |
schwerstes Teil | 32 kg |
Fundamente | 4x FFk oder 4x OF |
Bodenbeschaffenheit | mind. Stein |
Mindest-Raum | 520x400x225 cm |
Anmelden
Kompakter Leitfaden für Spielplatzbetreiber
Spielplätze sind täglich intensiven Belastungen ausgesetzt. Neben Wettereinflüssen und starkem Gebrauch durch Kinder kommt es gelegentlich leider auch zu Schäden durch Vandalismus, Diebstahl oder sogar Brandstiftung. Als Betreiber tragen Sie eine besondere Verantwortung, denn Sicherheitsmängel können erhebliche Unfallrisiken und Haftungsfolgen mit sich bringen.
Ihre Verantwortung als Betreiber
Neben der Installation normgerechter Spielgeräte und geeigneter Fallschutzsysteme sind Sie dazu verpflichtet, regelmäßig deren Zustand zu überprüfen und die Anlagen entsprechend zu warten und instand zu halten. Grundlage hierfür ist die Norm EN 1176:2020 Teil 7 „Anleitung für Installation, Inspektion, Wartung und Betrieb“. Nachfolgend haben wir die wichtigsten Prüfpunkte übersichtlich für Sie zusammengefasst:
- 1. Erstinspektion nach Aufbau
Bevor ein Spielplatz öffentlich zugänglich gemacht wird, muss eine unabhängige Abnahmeinspektion erfolgen. Hierbei wird der Zustand der Geräte und des Umfeldes umfassend geprüft, um ein sicheres Spielumfeld zu gewährleisten. -
2. Wöchentliche Sichtkontrolle
Diese Kontrollrunde dient der frühzeitigen Erkennung offensichtlicher Gefahrenquellen. Achten Sie insbesondere auf:
- Glasscherben, Unrat oder andere Fremdkörper auf der Spielfläche
- Fehlende oder beschädigte Teile durch Diebstahl, Brand oder Vandalismus
- Beschädigungen an Spielgeräten wie scharfe Kanten, Splitter oder Bruchstellen
- Ausreichend dicken und gut verteilten Fallschutz sowie korrekte Abdeckung der Fundamente
-
3. Monatliche Funktionsprüfung
Die monatliche Inspektion umfasst eine gründlichere Prüfung der Spielgeräte und sollte durch qualifiziertes Fachpersonal erfolgen. Kontrolliert werden:
- Zustand aller tragenden und funktionalen Elemente
- Stabilität der Geräte und Verschleiß der Materialien
- Fallschutz hinsichtlich Schichtdicke und Dämpfungseigenschaften
-
4. Jährliche Hauptinspektion
Einmal jährlich muss eine umfassende Inspektion durch einen zertifizierten Sachkundigen für Spielplatzgeräte durchgeführt werden. Zu dieser Sicherheitsprüfung gehören:
- Gründliche Kontrolle aller Geräte, Fundamente und Umgebungsflächen
- Prüfung von Stabilität, Einfriedungen, Zugang, Mobiliar und Bewuchs
- Untersuchung auf Korrosion, Fäulnis und strukturelle Schäden
- Besonders kritische Prüfung einzelner tragender Pfosten und Fundamente
- Kontrolle sämtlicher Schrauben und Verbindungen
Empfehlung: Nutzen Sie die Winterzeit für diese Inspektion, idealerweise vor Saisonstart im Mai, um rechtzeitig etwaige Mängel zu beheben. Achten Sie darauf, dass Ihr Prüfer eine aktuelle Qualifikation nach DIN 79161 nachweisen kann. -
5. Reparaturen und Sofortmaßnahmen
Festgestellte erhebliche Sicherheitsmängel müssen unverzüglich behoben werden. Besteht unmittelbare Gefahr, sind betroffene Geräte sofort zu sperren oder zu demontieren.
Ein gut sichtbares Hinweisschild mit Informationen wie Standort, Notrufnummer und Ansprechpartner des Wartungspersonals sollte obligatorisch auf dem Spielplatz installiert sein. So stellen Sie sicher, dass auftretende Probleme oder Unfälle umgehend gemeldet werden können. -
6. Dokumentation und Nachweise
Führen Sie zur Unterstützung Ihres Sicherheitsmanagements ein Kontrollbuch. Tragen Sie darin alle Inspektionen, Wartungen, Reparaturen und Verantwortlichkeiten ein. Zu unseren Produkten stellen wir Ihnen umfassende Montage- und Wartungsanleitungen zur Verfügung. Wenn Sie die Montage bei uns gebucht haben, erhalten Sie zusätzlich ein Abnahmeprotokoll, das Ihnen als Nachweis für eine normgerechte Installation und Betriebssicherheit dient.
Nutzen Sie zudem unsere regelmäßigen Kundenseminare als wertvolle Fortbildung für sich und Ihr Personal, um stets über aktuelle Standards und Vorschriften informiert zu sein.
Informationen zu unserer Garantie und Gewährleistung entnehmen Sie bitte unseren AGB unter dem Punkt G. "Gewährleistung" Sie finden diese unter nachfolgendem Link: Gewährleistung AGB

Benötigen Sie weitere Dateiformate (z. B. .DWG) oder Ausschreibungstexte?
Dann kontaktieren Sie uns gerne – wir helfen weiter!

Beschläge aus Edelstahl
Wir verwenden V2A Edelstahl rostfrei. Somit sind unsere Beschläge korrisionsbeständig, temperaturbeständig, hygienisch, langlebig und wartungsarm.

Nachhaltiges Holz
Wir verwenden 100% nachhaltiges FSC-zertifiziertes Holz. Splint- und kernfrei.

Ummantelte Stahlseile
Unsere Seile & Netze sind mit Polyster (PES) ummantelt. Die 6-litzigen Stahlseile sind bestens für höchste Beanspruchung geeignet. Sie zeichnen sich durch geringe Wasseraufnahme & Sandeinlagerung aus. Dabei sind sie UV beständig und habe eine hohe Scheuerfestigkeit.

Garantie
10 Jahre Garantie auf Standsicherheit: für kesseldruckimprägnierte Nadelhölzer und HPL-Platten. *Weitere Details siehe AGB.

Fertigfundamente
Dieses Spielgerät kann mit unseren Fertigfundamenten verwendet werden. Das spart Zeit und Budget.

HPL (6mm/15mm)
Unsere Laminate bestehen aus mehreren Schichten Papier mit Harz Beschichtung. Eine hohe Zug- und Biegesteifigkeit bei gleichzeitiger Elastizität sind das Ergebnis.

Sie haben Fragen zum Produkt?
Wir verstehen, dass der Kauf eines Produkts eine Investition ist, und wir möchten sicherstellen, dass Sie mit Ihrer Entscheidung zufrieden sind.
Daher legen wir großen Wert darauf, Ihnen einen hervorragenden Kundenservice zu bieten und Ihre Fragen so gut wie möglich zu beantworten.
Wir sind stolz auf die Qualität unserer Produkte und möchten sicherstellen, dass Sie die bestmögliche Erfahrung machen. Wenn Sie Fragen zu den Funktionen, technischen Spezifikationen, Größen oder anderen Details eines Produkts haben, zögern Sie nicht, uns zu kontaktieren.
Unser Ziel ist es, Ihnen alle Informationen zur Verfügung zu stellen, die Sie benötigen, um eine fundierte Kaufentscheidung zu treffen.
Bei uns stehen Sie als Kunde im Mittelpunkt, und wir sind bestrebt, Ihre Fragen zum Produkt schnell und umfassend zu beantworten.
Zögern Sie also nicht, uns zu kontaktieren, wenn Sie weitere Informationen benötigen. Wir freuen uns darauf, Ihnen bei Ihrem Einkaufserlebnis behilflich zu sein und sicherzustellen, dass Sie die richtige Wahl treffen.
Stöbern Sie hierzu auch gerne durch unsere FAQ - Häufige Fragen.
Oder rufen Sie uns gerne an: 0351 210720100